NO.71

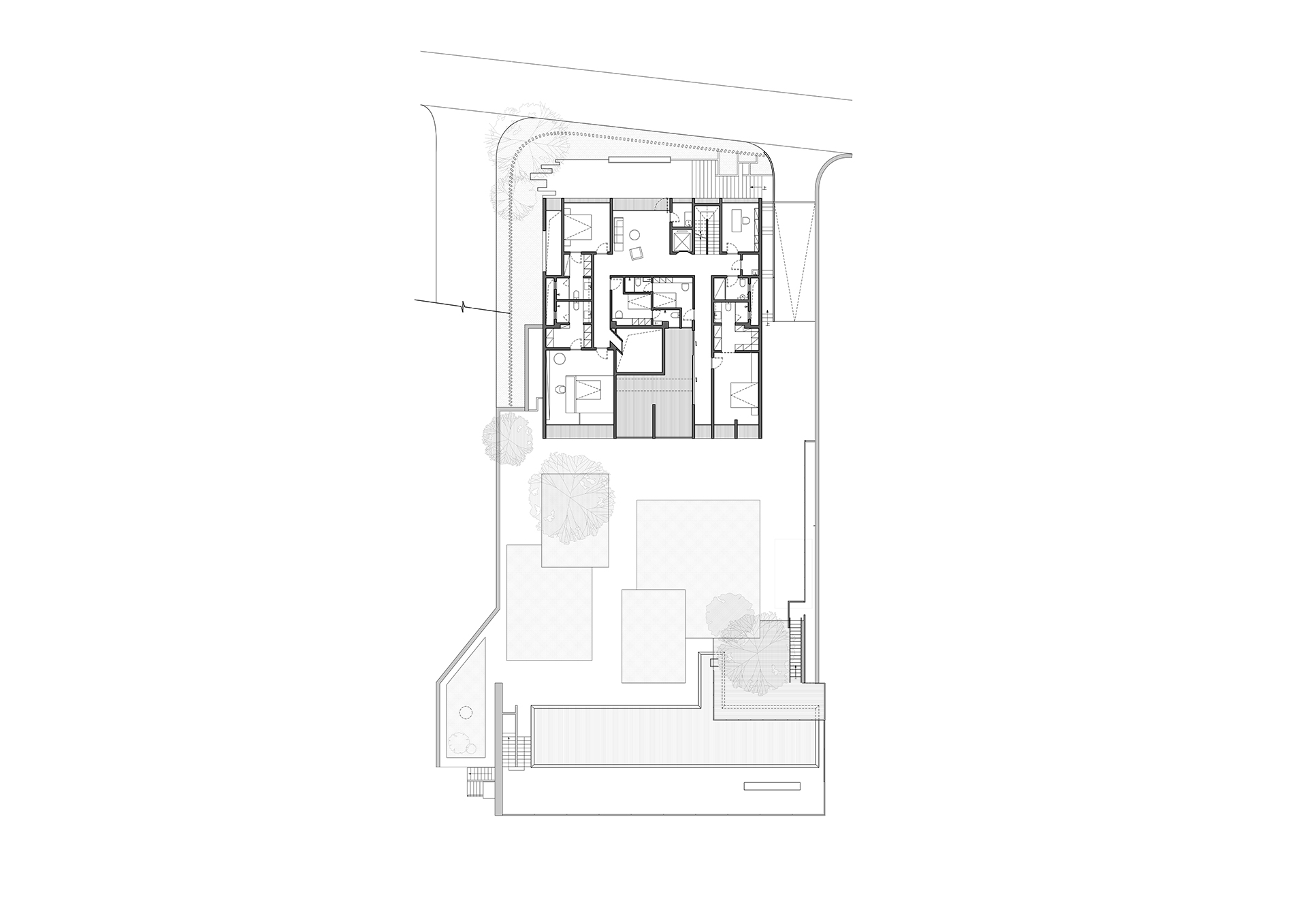
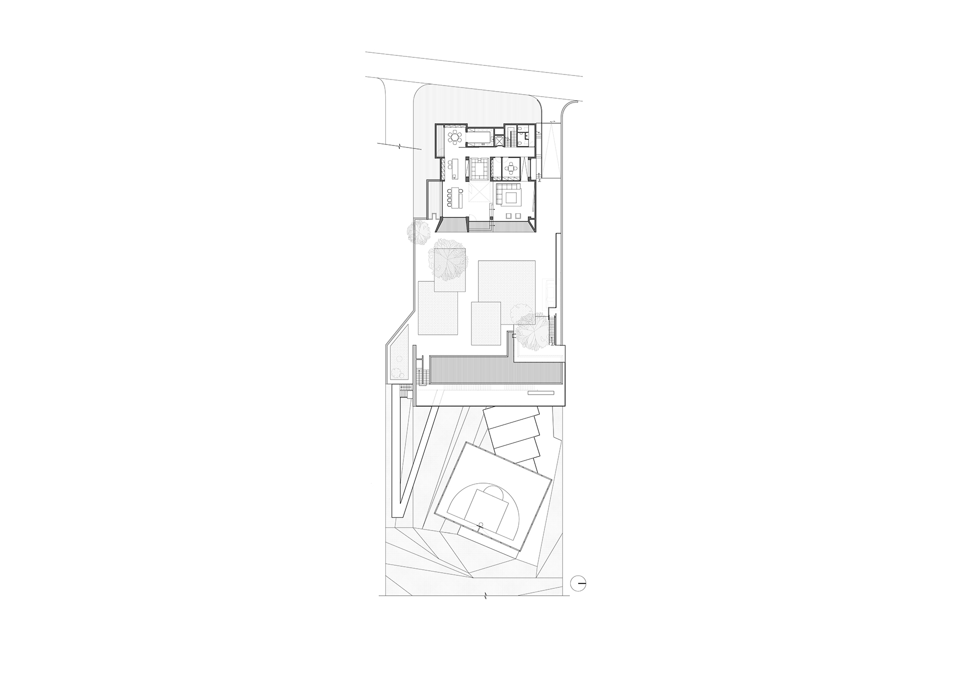
这原本是一个“中式想象的欧式”建筑,为什么说是想象呢?因为欧洲从未有这样的建筑样式存在。这是在特定时期一种用廉价创造奢华的造梦方法。但是他地处长江边,高悬于山腰之上,无限的风景环绕。经过长时间的讨论,业主终于下定决心将其进行一个脱胎换骨的改造,将一个“欧式”建筑改造成为贴合生活本质的真实建筑。改造后的空间更加开阔。玻璃窗将长江和远山引入室内,天井让自然光线抵达到房间的进深处,一改原本由于单侧采光所产生的幽暗。花园是漂浮起来的草坪,相互叠加,在叠加的边缘安置了照明路径的光线。泳池的水蔓出了边界,像一面镜子,在视觉上连接到了长江。围墙原本低矮,院子内部几乎能被肆意的窥探。于是将结构柱升高,清水混凝土除了填充部分墙面,还在柱子顶部搭建了一个更加适合远眺的平台。底部仍有大量空间可以被使用,于是便有了果园,球场,鱼池,动物园......

时间:2018
地点:重庆
面积:2000 sqm
类型:建筑,室内,景观
内容:居住
状态:已建成